Property
Beds
2
Full Baths
2
1/2 Baths
None
Year Built
2001
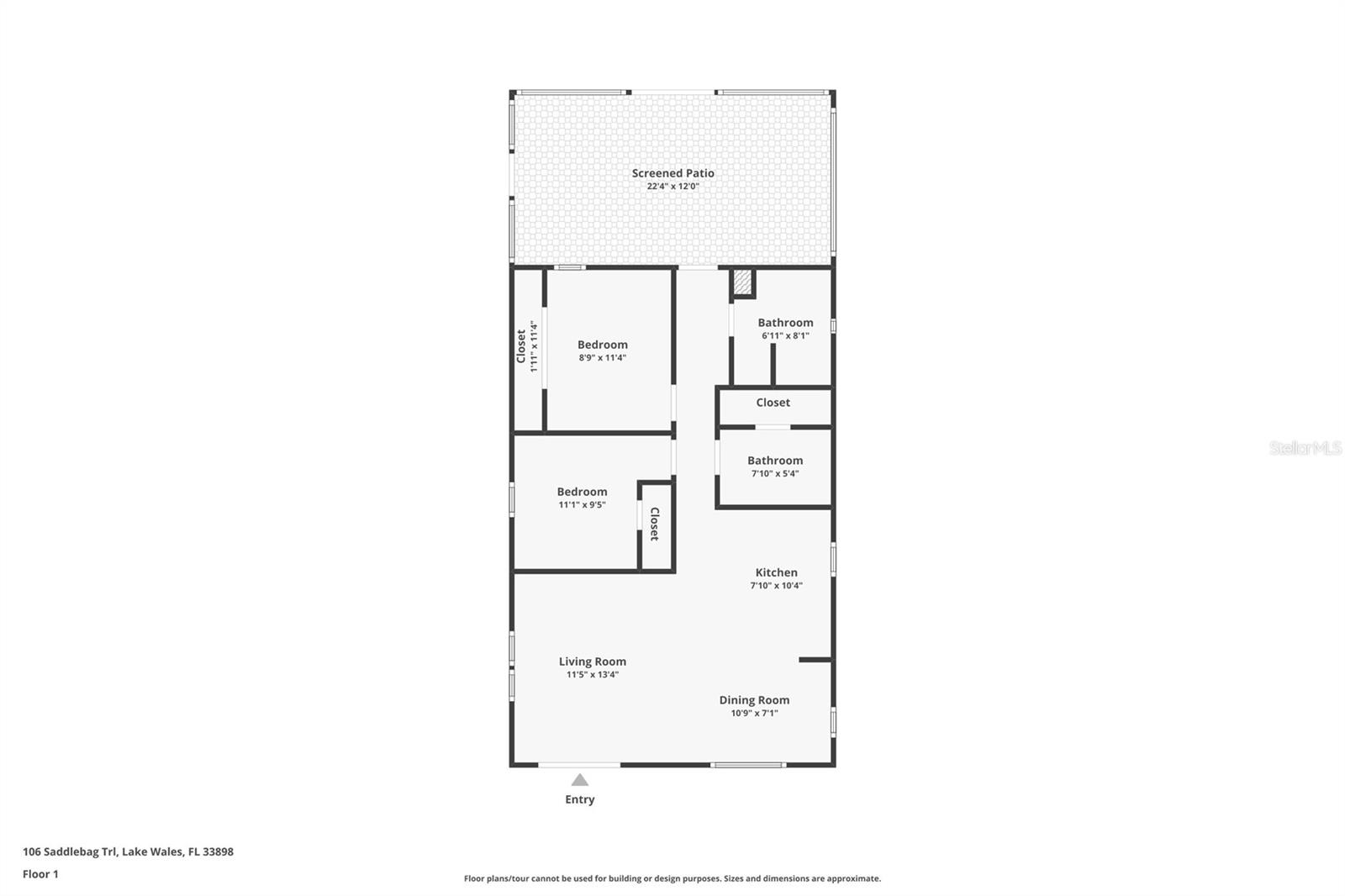
Sq.Footage
864
One or more photo(s) has been virtually staged. Step into resort-style living at its finest in the beautiful, gated Saddlebag Resort of Lake Wales. This charming 864 sq. ft. furnished home is bursting with comfort and character, offering a cozy retreat with modern upgrades and thoughtful details throughout. From the moment you arrive, the inviting two-car carport with a green-toned exterior flooring extends your living space outdoors. The shed adds extra storage and personality, while there's also a screened-in outdoor the back of the house with a mounted television to enjoy the evenings. Inside, a bright and open living room and dining area create the perfect backdrop for both quiet mornings and evenings of entertaining. The kitchen’s two-seat sit-in bar makes an ideal spot for coffee, conversation, or casual meals. This home has been carefully updated with a new roof, new water heater, and a new A/C unit — giving you peace of mind and worry-free living. Best of all, it comes fully furnished, so you can move right in and start enjoying all that Saddlebag Resort has to offer — from fishing on the lake and lounging by the pool to social gatherings and tennis matches with friends. Whether you’re looking for a seasonal retreat or a year-round haven, this home delivers the perfect balance of charm, convenience, and community.
Features & Amenities
Interior
-
Total Bedrooms
2
-
Bathrooms
2
-
Cooling YN
YES
-
Cooling
Central Air
-
Fireplace YN
NO
-
Heating YN
YES
-
Heating
Exhaust Fan
-
Pet friendly
Cats OK, Dogs OK
Exterior
-
Garage
No
-
Construction Materials
Vinyl Siding
-
Other Exterior Features
Rain Gutters
-
Pool
No
-
Waterfront YN
NO
Area & Lot
-
Lot Size(acres)
2.49
-
Property Type
Residential
-
Property Sub Type
Manufactured Home
Price
-
Sales Price
$165,000
-
Tax Amount
1948.94
-
Sq. Footage
864
-
Price/SqFt
$190
HOA
-
Association
YES
-
Association Fee
$201
-
Association Fee Frequency
Quarterly
-
Association Fee Includes
N/A
School District
-
Elementary School
Janie Howard Wilson Elem
-
Middle School
Sleepy Hill Middle
-
High School
Chain of Lakes Collegiate High
Property Features
-
Stories
1
-
Ownership
Fee Simple
-
Senior Community YN
YES
-
Sewer
Public Sewer, Septic Needed
-
Water Source
Public
Schedule a Showing
Showing scheduled successfully.
Mortgage calculator
Estimate your monthly mortgage payment, including the principal and interest, property taxes, and HOA. Adjust the values to generate a more accurate rate.
Your payment
Principal and Interest:
$
Property taxes:
$
HOA fees:
$
Total loan payment:
$
Total interest amount:
$
Location
County
Polk
Elementary School
Janie Howard Wilson Elem
Middle School
Sleepy Hill Middle
High School
Chain of Lakes Collegiate High
Listing Courtesy of Dru Sykes , BENDER REALTY, LLC
RealHub Information is provided exclusively for consumers' personal, non-commercial use, and it may not be used for any purpose other than to identify prospective properties consumers may be interested in purchasing. All information deemed reliable but not guaranteed and should be independently verified. All properties are subject to prior sale, change or withdrawal. RealHub website owner shall not be responsible for any typographical errors, misinformation, misprints and shall be held totally harmless.

FOUNDER
DanielleUrtnowski
Call Danielle today to schedule a private showing.

* Listings on this website come from the FMLS IDX Compilation and may be held by brokerage firms other than the owner of this website. The listing brokerage is identified in any listing details. Information is deemed reliable but is not guaranteed. If you believe any FMLS listing contains material that infringes your copyrighted work please click here to review our DMCA policy and learn how to submit a takedown request.© 2024 FMLS.
