Property
Beds
6
Full Baths
4
1/2 Baths
1
Year Built
2025
Sq.Footage
4,443
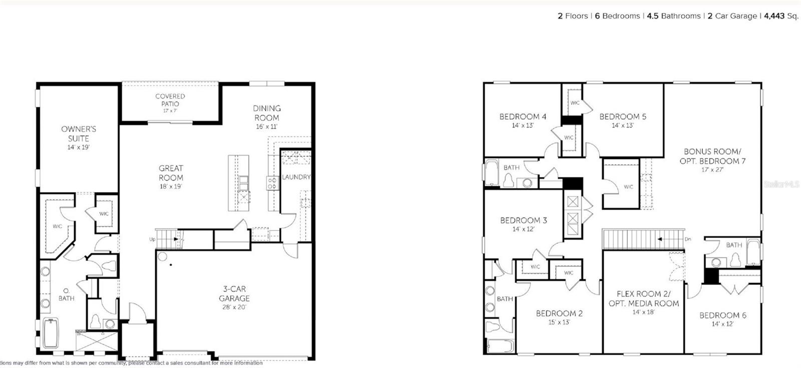
One or more photo(s) has been virtually staged. Step into your next home at the Sweetwater in Palms at Windermere. With over 4,400 square feet, this expansive two-story floorplan offers six bedrooms and four and a half baths, blending luxury and function for today’s modern living. On the first floor, the owner’s suite is a private retreat with dual walk-in closets and a spa-inspired bath. A flex room gives you space for a home office or creative studio, while a hobby/work area near the two-car garage adds even more functionality. The open-concept great room, filled with sunlit walls in warm ivory tones, flows seamlessly into the dining room and gourmet kitchen, where espresso cabinetry, quartz counters, and stainless steel finishes create a striking contrast. Just beyond, sliding glass doors open to the covered patio... the perfect spot to enjoy Florida’s golden evenings. Upstairs, five additional bedrooms, most with walk-in closets, connect through airy corridors in calming dove gray hues. Multiple bonus spaces invite possibilities: a game room, media center, or fitness studio... whatever lifestyle your family envisions. Beyond the front door, Palms at Windermere offers more than a community... It’s a way of life. Picture tree-lined streets, emerald-green lawns, shimmering lake views, and walking paths with surrounding conservation. Top-rated schools, boutique shopping, vibrant dining, and downtown Orlando are just minutes away, bringing both convenience and charm to your everyday life. Schedule your private showing today and experience how the Sweetwater brings together comfort, sophistication, and timeless Windermere living. COMMUNITY DETAILS: Experience Life with Style, Serenity, and Sophistication at Palms at Windermere Imagine waking up each day to the gentle breeze off a sparkling lake, surrounded by tree-lined streets and the timeless charm of Windermere. At Palms at Windermere, this lifestyle isn’t a getaway—it’s home. Crafted by Dream Finders Homes, this exclusive enclave offers a limited collection of beautifully designed single-family homes, where every detail speaks to quality and comfort. Step inside to discover spacious open-concept living, gourmet kitchens perfect for entertaining, and serene owner’s suites that feel like a private retreat. Beyond your doorstep, nature and community come together. Take an evening stroll along scenic trails or unwind in your backyard oasis. With top-rated schools, upscale shopping, vibrant dining, and downtown Orlando just minutes away, Palms at Windermere brings the best of Central Florida to your doorstep—without compromising peace or privacy. Whether you're raising a family, working remotely, or simply seeking a refined place to call home, this is where life elevates. Ready to experience the elegance for yourself? Schedule a private tour today and discover why so many are choosing to call Palms at Windermere home.
Features & Amenities
Interior
-
Other Interior Features
Eat-in Kitchen, High Ceilings, Open Floorplan, Walk-In Closet(s)
-
Total Bedrooms
6
-
Bathrooms
4
-
1/2 Bathrooms
1
-
Cooling YN
YES
-
Cooling
Central Air
-
Fireplace YN
NO
-
Heating YN
YES
-
Heating
Central, Electric, Exhaust Fan, Heat Pump
-
Pet friendly
Yes
Exterior
-
Garage
Yes
-
Garage spaces
2
-
Construction Materials
Block, Cement Siding, Frame
-
Parking
Driveway, Garage Door Opener, Oversized, Attached
-
Patio and Porch Features
Covered, Rear Porch
-
Pool
No
-
Waterfront YN
NO
Area & Lot
-
Lot Features
Cleared, Paved
-
Lot Size(acres)
0.16
-
Property Type
Residential
-
Property Sub Type
Single Family Residence
-
Architectural Style
Florida
Price
-
Sales Price
$1,202,310
-
Tax Amount
1309.0
-
Sq. Footage
4, 443
-
Price/SqFt
$270
HOA
-
Association
YES
-
Association Fee
$275
-
Association Fee Frequency
Monthly
-
Association Fee Includes
N/A
School District
-
Elementary School
Bay Lake Elementary
-
Middle School
Horizon West Middle School
-
High School
Windermere High School
Property Features
-
Association Amenities
Park, Playground, Recreation Facilities
-
Foundation Details
Slab
-
Ownership
Fee Simple
-
Senior Community YN
NO
-
Sewer
Public Sewer
-
Tax Lot
5
-
Water Source
Public
Schedule a Showing
Showing scheduled successfully.
Mortgage calculator
Estimate your monthly mortgage payment, including the principal and interest, property taxes, and HOA. Adjust the values to generate a more accurate rate.
Your payment
Principal and Interest:
$
Property taxes:
$
HOA fees:
$
Total loan payment:
$
Total interest amount:
$
Location
County
Orange
Elementary School
Bay Lake Elementary
Middle School
Horizon West Middle School
High School
Windermere High School
Listing Courtesy of Cindy Sapp , OLYMPUS EXECUTIVE REALTY INC
RealHub Information is provided exclusively for consumers' personal, non-commercial use, and it may not be used for any purpose other than to identify prospective properties consumers may be interested in purchasing. All information deemed reliable but not guaranteed and should be independently verified. All properties are subject to prior sale, change or withdrawal. RealHub website owner shall not be responsible for any typographical errors, misinformation, misprints and shall be held totally harmless.

FOUNDER
DanielleUrtnowski
Call Danielle today to schedule a private showing.

* Listings on this website come from the FMLS IDX Compilation and may be held by brokerage firms other than the owner of this website. The listing brokerage is identified in any listing details. Information is deemed reliable but is not guaranteed. If you believe any FMLS listing contains material that infringes your copyrighted work please click here to review our DMCA policy and learn how to submit a takedown request.© 2024 FMLS.
