Property
Beds
2
Full Baths
2
1/2 Baths
None
Year Built
1983
Sq.Footage
1,040
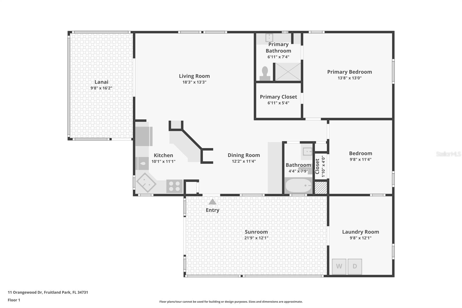
Welcome to this inviting 2-bedroom, 2-bath home in the highly sought-after 55+ community of Harbor Oaks. Situated along the shores of Lake Griffin, this home offers a fantastic opportunity to enjoy an active and relaxed lifestyle in a beautiful setting. Step inside to find a spacious layout with plenty of natural light. The home features a bright and airy Florida room, perfect for relaxing or entertaining. The main portion of the house has been updated with new double-paned windows, enhancing energy efficiency and comfort. A double driveway with a durable epoxy coating provides ample parking, while the roof-over, just 4 years old, adds peace of mind. Harbor Oaks offers incredible amenities, including a clubhouse, heated pool and spa, shuffleboard, horseshoes, Petanque, a fishing pier, and a 31-slip covered marina with a private boat ramp. Enjoy easy access to boating, fishing, and stunning sunset views. Plus, The Villages is just 15 minutes away, offering endless options for shopping, dining, entertainment, and medical services. Don’t miss this chance to make Harbor Oaks your new home—schedule your tour today!
Features & Amenities
Interior
-
Other Interior Features
Built-in Features, Walk-In Closet(s)
-
Total Bedrooms
2
-
Bathrooms
2
-
Cooling YN
YES
-
Cooling
Central Air
-
Fireplace YN
NO
-
Heating YN
YES
-
Heating
Central, Electric
-
Pet friendly
Number Limit, Size Limit
Exterior
-
Garage
No
-
Construction Materials
Vinyl Siding, Frame
-
Pool
No
-
Waterfront YN
NO
Area & Lot
-
Lot Size(acres)
0.12
-
Property Type
Residential
-
Property Sub Type
Manufactured Home
Price
-
Sales Price
$145,900
-
Tax Amount
1014.2
-
Sq. Footage
1, 040
-
Price/SqFt
$140
HOA
-
Association
YES
-
Association Fee
$125
-
Association Fee Frequency
Monthly
-
Association Fee Includes
N/A
School District
-
Elementary School
N/A
-
Middle School
N/A
-
High School
N/A
Property Features
-
Stories
1
-
Association Amenities
Clubhouse, Recreation Facilities, Shuffleboard Court, Spa/Hot Tub
-
Ownership
Co-op
-
Senior Community YN
YES
-
Sewer
Private Sewer
-
Tax Lot
58
-
Water Source
Private
Schedule a Showing
Showing scheduled successfully.
Mortgage calculator
Estimate your monthly mortgage payment, including the principal and interest, property taxes, and HOA. Adjust the values to generate a more accurate rate.
Your payment
Principal and Interest:
$
Property taxes:
$
HOA fees:
$
Total loan payment:
$
Total interest amount:
$
Location
County
Lake
Elementary School
Middle School
High School
Listing Courtesy of Debbie Muma , COLDWELL BANKER VANGUARD EDGE
RealHub Information is provided exclusively for consumers' personal, non-commercial use, and it may not be used for any purpose other than to identify prospective properties consumers may be interested in purchasing. All information deemed reliable but not guaranteed and should be independently verified. All properties are subject to prior sale, change or withdrawal. RealHub website owner shall not be responsible for any typographical errors, misinformation, misprints and shall be held totally harmless.

FOUNDER
DanielleUrtnowski
Call Danielle today to schedule a private showing.

* Listings on this website come from the FMLS IDX Compilation and may be held by brokerage firms other than the owner of this website. The listing brokerage is identified in any listing details. Information is deemed reliable but is not guaranteed. If you believe any FMLS listing contains material that infringes your copyrighted work please click here to review our DMCA policy and learn how to submit a takedown request.© 2024 FMLS.
