Property
Beds
3
Full Baths
2
1/2 Baths
None
Year Built
2002
Sq.Footage
2,987
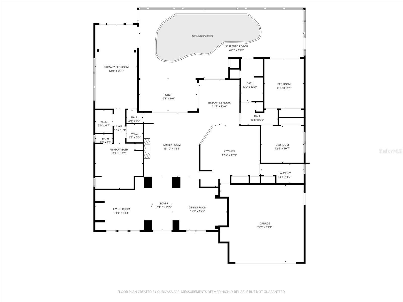
Discover this stunning former model home, located on an oversized corner waterfront lot in the highly desirable community of Punta Gorda Isles. This exceptional residence was designed with elegance, comfort, and waterfront living in mind — offering direct powerboat access to Charlotte Harbor in under 20 minutes. Step inside and experience the inviting, open layout with bright water views from nearly every room. The formal living and dining rooms feature custom lighted built-in cabinetry, display shelving, and a stylish bar area — ideal for entertaining. A true split floor plan provides privacy, with the expansive master suite tucked away at the rear of the home. The master retreat includes a cozy sitting area overlooking the canal and pool, dual walk-in closets, and a spa-inspired bathroom with dual vanities, a soaking tub, and a spacious shower. This 3-bedroom, 2-bath home showcases exceptional craftsmanship and high-end finishes throughout, including soaring, high-spacious ceilings throughout the home, decorative tray ceilings in every room, crown molding (even in the garage), granite countertops, and premium wood cabinetry, a propane gas fireplace, arched doorways, 8-foot interior doors, and upgraded lighting and ceiling fans. This home is pre-wired for a whole-home network and an entertainment connection center. The gourmet kitchen flows seamlessly to the family room and outdoors, where you’ll find the perfect Florida retreat. Enjoy the heated infinity-edge pool with screened lanai, built-in outdoor grill, stamped concrete decking, and a stamped circular drive. The concrete dock and seawall (maintained by the City of Punta Gorda) make boating simple and worry-free. Additional highlights include a spacious laundry room with a washer/dryer and a built-in ironing board, as well as a pre-washing sink. An oversized garage with fans and can lighting, and an irrigation system. Located just blocks from St. Andrews South Golf Club, this home offers an unmatched lifestyle in Punta Gorda Isles — a deed-restricted waterfront community with 52 miles of saltwater canals leading to Charlotte Harbor and the Gulf of Mexico. Whether you’re seeking a full-time residence, seasonal retreat, or a move-in-ready waterfront home, this property is a rare opportunity to own a showcase home in one of Florida’s most desirable boating communities.
Features & Amenities
Interior
-
Other Interior Features
Cathedral Ceiling(s), Crown Molding, Eat-in Kitchen, High Ceilings, Stone Counters, Tray Ceiling(s), Walk-In Closet(s)
-
Total Bedrooms
3
-
Bathrooms
2
-
Cooling YN
YES
-
Cooling
Central Air, Humidity Control, Attic Fan
-
Fireplace YN
YES
-
Heating YN
YES
-
Heating
Electric, Zoned
-
Pet friendly
Yes
Exterior
-
Garage
Yes
-
Garage spaces
2
-
Construction Materials
Block, Stucco
-
Other Exterior Features
Lighting, Outdoor Shower, Storage
-
Parking
Driveway, Garage Door Opener, Attached
-
Patio and Porch Features
Covered, Front Porch, Patio, Screened
-
Pool
Yes
-
Pool Features
Gunite, Heated, In Ground, Infinity, Screen Enclosure, Tile, Private
-
Waterfront YN
NO
-
View
Park/Greenbelt, Trees/Woods, Water
Area & Lot
-
Lot Size(acres)
0.33
-
Property Type
Residential
-
Property Sub Type
Single Family Residence
Price
-
Sales Price
$795,000
-
Tax Amount
8604.95
-
Sq. Footage
2, 987
-
Price/SqFt
$266
HOA
-
Association
NO
School District
-
Elementary School
Sallie Jones Elementary
-
Middle School
Punta Gorda Middle
-
High School
Charlotte High
Property Features
-
Stories
1
-
Foundation Details
Slab
-
Ownership
Fee Simple
-
Senior Community YN
NO
-
Sewer
Public Sewer
-
Tax Lot
22
-
Water Source
Public
Schedule a Showing
Showing scheduled successfully.
Mortgage calculator
Estimate your monthly mortgage payment, including the principal and interest, property taxes, and HOA. Adjust the values to generate a more accurate rate.
Your payment
Principal and Interest:
$
Property taxes:
$
HOA fees:
$
Total loan payment:
$
Total interest amount:
$
Location
County
Charlotte
Elementary School
Sallie Jones Elementary
Middle School
Punta Gorda Middle
High School
Charlotte High
Listing Courtesy of Chadwick Knight , REALTY ONE GROUP MVP
RealHub Information is provided exclusively for consumers' personal, non-commercial use, and it may not be used for any purpose other than to identify prospective properties consumers may be interested in purchasing. All information deemed reliable but not guaranteed and should be independently verified. All properties are subject to prior sale, change or withdrawal. RealHub website owner shall not be responsible for any typographical errors, misinformation, misprints and shall be held totally harmless.

FOUNDER
DanielleUrtnowski
Call Danielle today to schedule a private showing.

* Listings on this website come from the FMLS IDX Compilation and may be held by brokerage firms other than the owner of this website. The listing brokerage is identified in any listing details. Information is deemed reliable but is not guaranteed. If you believe any FMLS listing contains material that infringes your copyrighted work please click here to review our DMCA policy and learn how to submit a takedown request.© 2024 FMLS.
