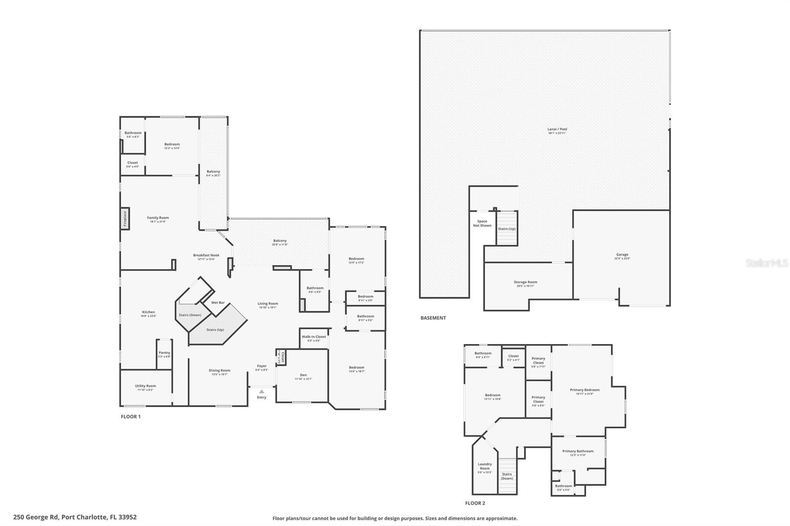
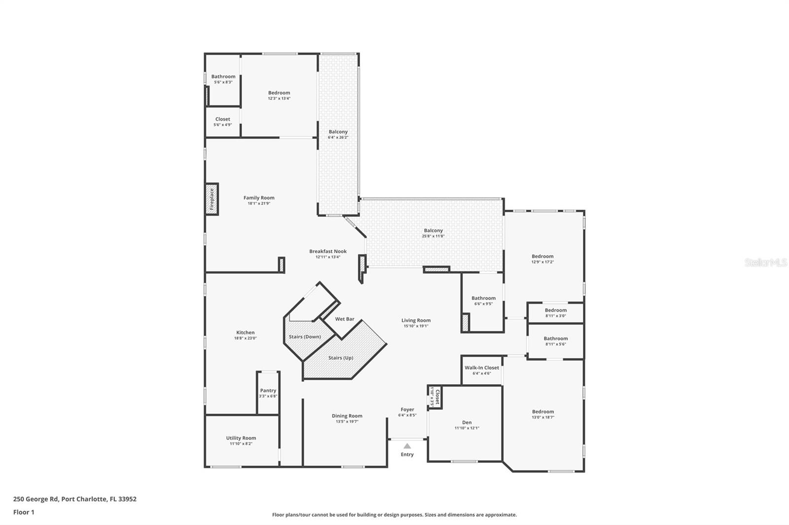
Property
Beds
5
Full Baths
6
1/2 Baths
None
Year Built
2003
Sq.Footage
4,176
EXCEPTIONAL WATERFRONT HOME IN PORT CHARLOTTE W/NEARLY INSTANT ACCESS TO OPEN WATER! Looking for a spectacular waterfront residence w/***NEW METAL ROOF***, FIVE BEDROOMS (ALL OF THEM W/EN-SUITE BATHS), A PRIVATE DEN & OVER 4,100 SQFT of living space? Run, don't walk to this one-of-kind, two story home that was designed for entertaining. The first floor boasts a formal living room w/wet bar, formal dining room, home office plus a LARGE kitchen & spacious family room w/fireplace. The living room, family room & two guest rooms open to the balcony area that overlooks the pool. True chef's kitchen offers an abundance of cabinet & counter space w/a center island & prep area, stainless steel appliances (w/two dishwashers), plus an oversized walk-in pantry. The adjacent breakfast nook offers direct access to the balcony w/views of the pool & canal beyond. Three bedrooms are found on the main floor - each w/a large, walk-in closet & private en-suite bath. The master bedroom, laundry room & 5th bedroom are located on the second floor. The master suite features awesome views of Charlotte Harbor, a bump-out seating area & two unexpectedly large walk-in closets. The master bath has dual sinks atop a floating vanity w/stone counter plus a jetted garden tub & separate walk-in closet. The private WC has two linen closets. There is no shortage of storage space here! The 5th bedroom has (of course) an en-suite bath PLUS a balcony overlooking the canal view behind the home. The two-story pool cage encompasses the ground floor level area plus the balcony off the main floor. From the ground level, you'll enjoy the in-ground pool that is surrounded by a brick paver deck plus a summer kitchen, half bath & ample covered space that is perfect for a ping pong or foosball table, dedicated workshop area. The space has been used to host large parties w/catered food & tables filling the space w/laughter & conversation. Picture hosting memorable family gatherings here! An oversized, composite dock is located just steps from the back door. Keep your boat in your backyard & start enjoying some of the best fishing & boating in SW Florida immediately! You could swim to open water from the dock! Best of both worlds w/harbor views available from the front of the home & protected canal/dock for your boat at the back of the home. Other amenities include two A/C systems, hurricane protection, large coat/shoe closet at the foyer & an oversized two-car garage w/split doors. For the gardening enthusiasts, this house has an abundance of Mango, Fig, Chikoo, Lychee, Sugar Apple trees and more! Make an appointment today, you won't be disappointed.
Features & Amenities
Interior
-
Other Interior Features
Stone Counters, Walk-In Closet(s)
-
Total Bedrooms
5
-
Bathrooms
6
-
Basement YN
YES
-
Cooling YN
YES
-
Cooling
Central Air, Zoned
-
Fireplace YN
NO
-
Heating YN
YES
-
Heating
Central, Electric, Zoned
-
Pet friendly
Yes
Exterior
-
Garage
Yes
-
Garage spaces
2
-
Construction Materials
Block, Stucco
-
Other Exterior Features
Outdoor Kitchen, Outdoor Shower, Dock
-
Parking
Garage Door Opener, Attached
-
Patio and Porch Features
Screened
-
Pool
Yes
-
Pool Features
Gunite, In Ground, Screen Enclosure, Private
-
Waterfront YN
YES
-
View
Canal, Water
Area & Lot
-
Lot Features
Paved, Waterfront
-
Lot Size(acres)
0.29
-
Property Type
Residential
-
Property Sub Type
Single Family Residence
-
Architectural Style
Custom, Florida
Price
-
Sales Price
$1,500,000
-
Tax Amount
10480.0
-
Sq. Footage
4, 176
-
Price/SqFt
$359
HOA
-
Association
NO
School District
-
Elementary School
Peace River Elementary
-
Middle School
Port Charlotte Middle
-
High School
Charlotte High
Property Features
-
Foundation Details
Other, Slab
-
Ownership
Fee Simple
-
Senior Community YN
NO
-
Sewer
Public Sewer
-
Tax Lot
265
-
Water Source
Public
Schedule a Showing
Showing scheduled successfully.
Mortgage calculator
Estimate your monthly mortgage payment, including the principal and interest, property taxes, and HOA. Adjust the values to generate a more accurate rate.
Your payment
Principal and Interest:
$
Property taxes:
$
HOA fees:
$
Total loan payment:
$
Total interest amount:
$
Location
County
Charlotte
Elementary School
Peace River Elementary
Middle School
Port Charlotte Middle
High School
Charlotte High
Listing Courtesy of Luke Andreae , RE/MAX HARBOR REALTY
RealHub Information is provided exclusively for consumers' personal, non-commercial use, and it may not be used for any purpose other than to identify prospective properties consumers may be interested in purchasing. All information deemed reliable but not guaranteed and should be independently verified. All properties are subject to prior sale, change or withdrawal. RealHub website owner shall not be responsible for any typographical errors, misinformation, misprints and shall be held totally harmless.

FOUNDER
DanielleUrtnowski
Call Danielle today to schedule a private showing.

* Listings on this website come from the FMLS IDX Compilation and may be held by brokerage firms other than the owner of this website. The listing brokerage is identified in any listing details. Information is deemed reliable but is not guaranteed. If you believe any FMLS listing contains material that infringes your copyrighted work please click here to review our DMCA policy and learn how to submit a takedown request.© 2024 FMLS.
