Property
Beds
2
Full Baths
2
1/2 Baths
None
Year Built
1979
Sq.Footage
672
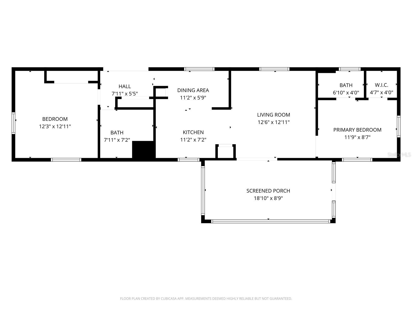
Welcome to a charming 2-bedroom, 2-bath waterfront retreat nestled in a quiet canal-side community in Lake Wales. Perfect as a year-round home or seasonal escape, this lovingly maintained manufactured home offers affordable lakeside living with direct access to Crooked Lake—one of Central Florida’s most coveted bodies of water. Inside, you'll find a well-designed split-bedroom floorplan featuring a spacious owner’s suite with a walk-in closet and built-in drawers, a cozy guest bedroom, and two full bathrooms. The kitchen offers ample cabinetry and a sunny eat-in area, while the adjacent living room flows into a bright Florida room—ideal for relaxing with morning coffee or hosting guests. Step outside and enjoy the true highlight of this home: your private slip, offering immediate canal access to Crooked Lake. Whether you're boating, fishing, or simply enjoying the view, this outdoor space is your private lakeside haven. A large deck and long carport provide both entertaining space and covered parking, and the storage shed ensures you have room for all your gear.
Features & Amenities
Interior
-
Total Bedrooms
2
-
Bathrooms
2
-
Cooling YN
YES
-
Cooling
Central Air
-
Fireplace YN
NO
-
Heating YN
YES
-
Heating
Central
-
Pet friendly
N/A
Exterior
-
Garage
No
-
Construction Materials
Vinyl Siding
-
Other Exterior Features
Awning(s), Garden
-
Pool
No
-
Waterfront YN
YES
-
View
Lake, Water
Area & Lot
-
Lot Features
Waterfront
-
Lot Size(acres)
0.12
-
Property Type
Residential
-
Property Sub Type
Manufactured Home
Price
-
Sales Price
$115,000
-
Tax Amount
618.0
-
Sq. Footage
672
-
Price/SqFt
$171
HOA
-
Association
NO
School District
-
Elementary School
N/A
-
Middle School
N/A
-
High School
N/A
Property Features
-
Ownership
Fee Simple
-
Senior Community YN
NO
-
Sewer
Public Sewer
-
Tax Lot
36
Schedule a Showing
Showing scheduled successfully.
Mortgage calculator
Estimate your monthly mortgage payment, including the principal and interest, property taxes, and HOA. Adjust the values to generate a more accurate rate.
Your payment
Principal and Interest:
$
Property taxes:
$
HOA fees:
$
Total loan payment:
$
Total interest amount:
$
Location
County
Polk
Elementary School
Middle School
High School
Listing Courtesy of Scott Fader , JOSEPH WALTER REALTY LLC
RealHub Information is provided exclusively for consumers' personal, non-commercial use, and it may not be used for any purpose other than to identify prospective properties consumers may be interested in purchasing. All information deemed reliable but not guaranteed and should be independently verified. All properties are subject to prior sale, change or withdrawal. RealHub website owner shall not be responsible for any typographical errors, misinformation, misprints and shall be held totally harmless.

FOUNDER
DanielleUrtnowski
Call Danielle today to schedule a private showing.

* Listings on this website come from the FMLS IDX Compilation and may be held by brokerage firms other than the owner of this website. The listing brokerage is identified in any listing details. Information is deemed reliable but is not guaranteed. If you believe any FMLS listing contains material that infringes your copyrighted work please click here to review our DMCA policy and learn how to submit a takedown request.© 2024 FMLS.
