Property
Beds
7
Full Baths
7
1/2 Baths
2
Year Built
2026
Sq.Footage
8,570
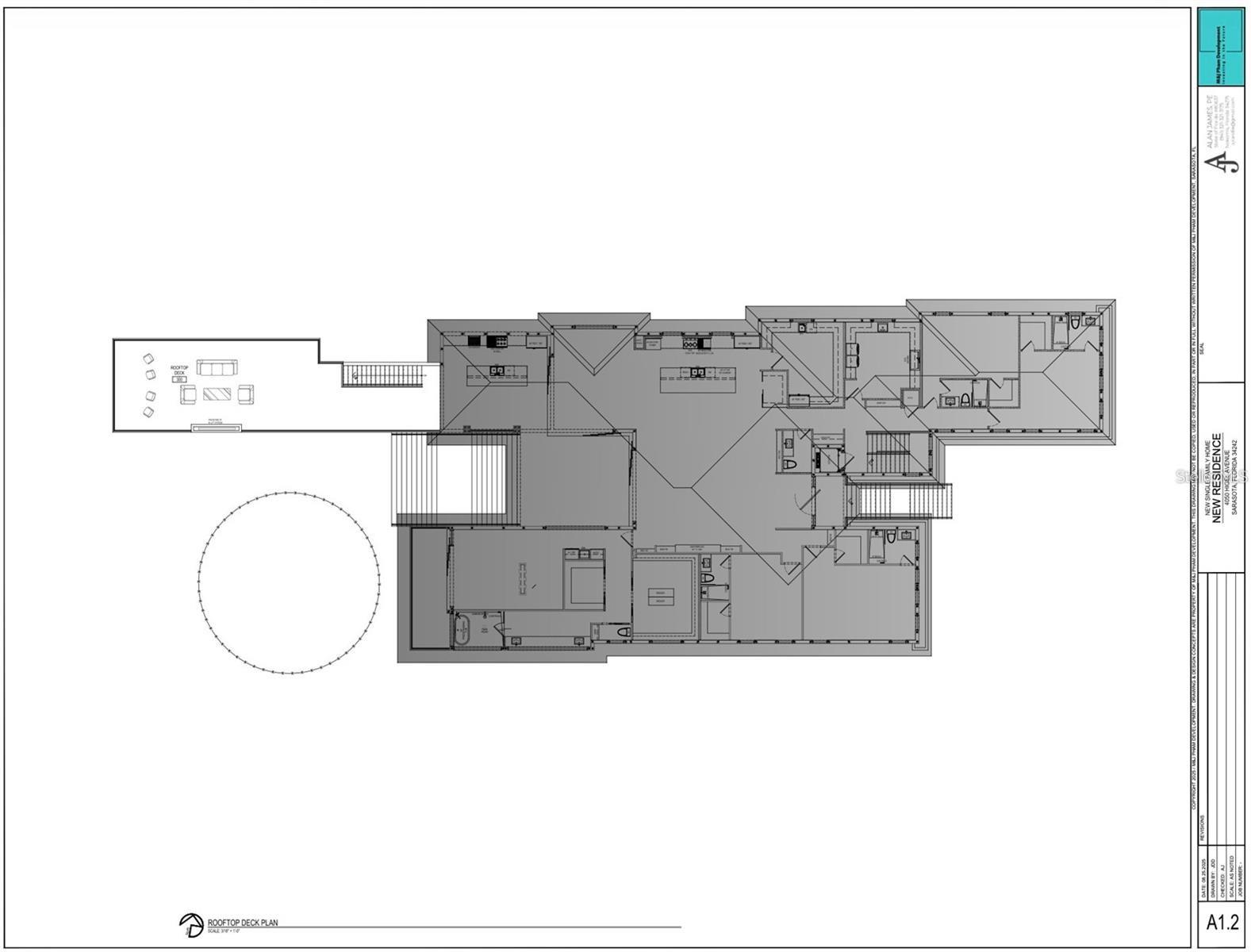
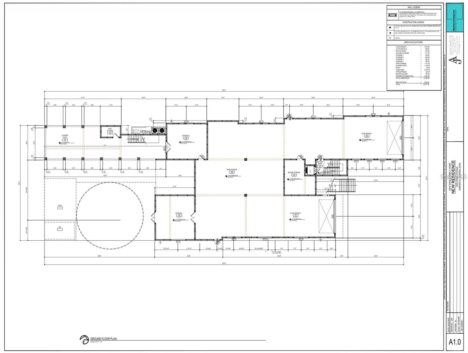
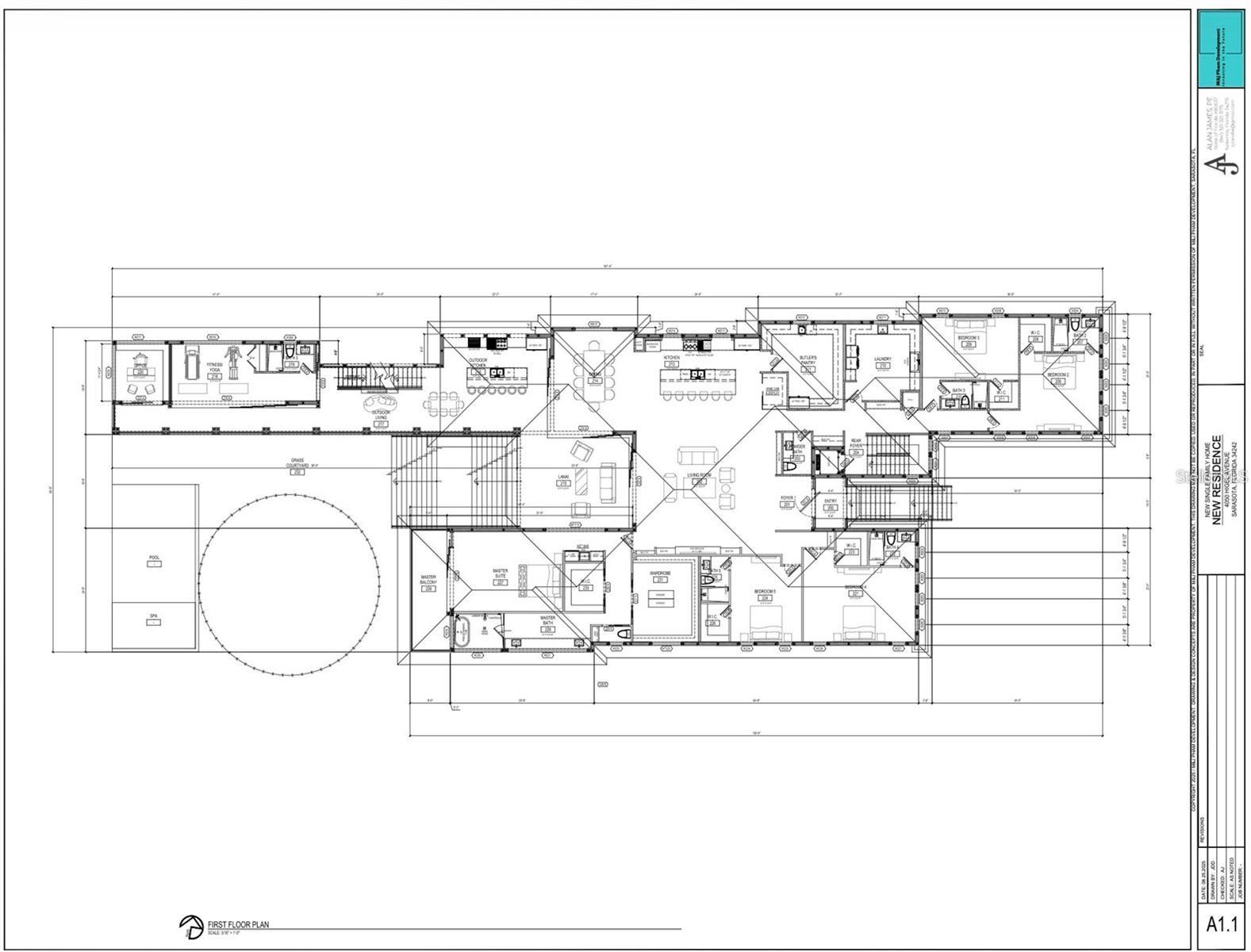
Pre-Construction. To be built. A rare Gulf-front offering, this 37,471 sq. ft. (.86-acre) parcel presents an extraordinary opportunity to create a signature coastal estate in one of Sarasota’s most coveted locations. Just steps from the sparkling waters of the Gulf of America and the Sarasota Bay, the nearly one-acre homesite provides a generous canvas for architectural vision—whether a sleek modern retreat, a timeless Mediterranean, or a resort-inspired sanctuary. This land has been fully prepped and made ready to build a New Construction home of your dreams. M&J Pham Development is the preferred builder, who has already created a conceptual blueprint for this property. The seawall has been reinforced with massive boulders and ripraps, to add extra protection and security to give the new homeowner peace of mind. The expansive lot allows for grand-scale design, with the potential for sweeping outdoor living spaces, infinity-edge pool, multiple terraces, and lush private gardens. From sunrise walks along the shoreline to breathtaking Gulf sunsets, every hallmark of coastal living is at your doorstep. Perfectly situated, the property blends serenity with convenience—only moments from world-class beaches, fine dining, boutique shopping, marinas, golf, and Sarasota’s vibrant cultural scene. Opportunities of this caliber are exceedingly rare. For the discerning buyer seeking both prestige and enduring value on the Gulf, this property is ready to bring your vision to life. The price listed is for LAND ONLY. The home rendered and designed plans have been pre approved by Sarasota County and can be built by Pham Development or a builder of your choice. Thank you.
Features & Amenities
Interior
-
Other Interior Features
Elevator, High Ceilings, Sauna, Smart Home, Walk-In Closet(s), Wet Bar
-
Total Bedrooms
7
-
Bathrooms
7
-
1/2 Bathrooms
2
-
Cooling YN
YES
-
Cooling
Central Air
-
Fireplace YN
YES
-
Heating YN
YES
-
Heating
Electric, Natural Gas
-
Pet friendly
N/A
Exterior
-
Garage
Yes
-
Garage spaces
3
-
Construction Materials
Block
-
Other Exterior Features
Awning(s), Balcony, Lighting
-
Parking
Attached
-
Pool
Yes
-
Pool Features
In Ground, Salt Water, Private
-
Waterfront YN
NO
Area & Lot
-
Lot Size(acres)
0.86
-
Property Type
Residential
-
Property Sub Type
Single Family Residence
Price
-
Sales Price
$8,500,000
-
Tax Amount
38793.0
-
Sq. Footage
8, 570
-
Price/SqFt
$991
HOA
-
Association
NO
School District
-
Elementary School
N/A
-
Middle School
N/A
-
High School
N/A
Property Features
-
Foundation Details
Slab
-
Ownership
Fee Simple
-
Senior Community YN
NO
-
Sewer
Private Sewer
-
Tax Lot
29
-
Water Source
Public
Schedule a Showing
Showing scheduled successfully.
Mortgage calculator
Estimate your monthly mortgage payment, including the principal and interest, property taxes, and HOA. Adjust the values to generate a more accurate rate.
Your payment
Principal and Interest:
$
Property taxes:
$
HOA fees:
$
Total loan payment:
$
Total interest amount:
$
Location
County
Sarasota
Elementary School
Middle School
High School
Listing Courtesy of Faith Stutzman , THE STUTZMAN REALTY GROUP, LLC
RealHub Information is provided exclusively for consumers' personal, non-commercial use, and it may not be used for any purpose other than to identify prospective properties consumers may be interested in purchasing. All information deemed reliable but not guaranteed and should be independently verified. All properties are subject to prior sale, change or withdrawal. RealHub website owner shall not be responsible for any typographical errors, misinformation, misprints and shall be held totally harmless.

FOUNDER
DanielleUrtnowski
Call Danielle today to schedule a private showing.

* Listings on this website come from the FMLS IDX Compilation and may be held by brokerage firms other than the owner of this website. The listing brokerage is identified in any listing details. Information is deemed reliable but is not guaranteed. If you believe any FMLS listing contains material that infringes your copyrighted work please click here to review our DMCA policy and learn how to submit a takedown request.© 2024 FMLS.
