Property
Beds
2
Full Baths
2
1/2 Baths
None
Year Built
1973
Sq.Footage
1,440
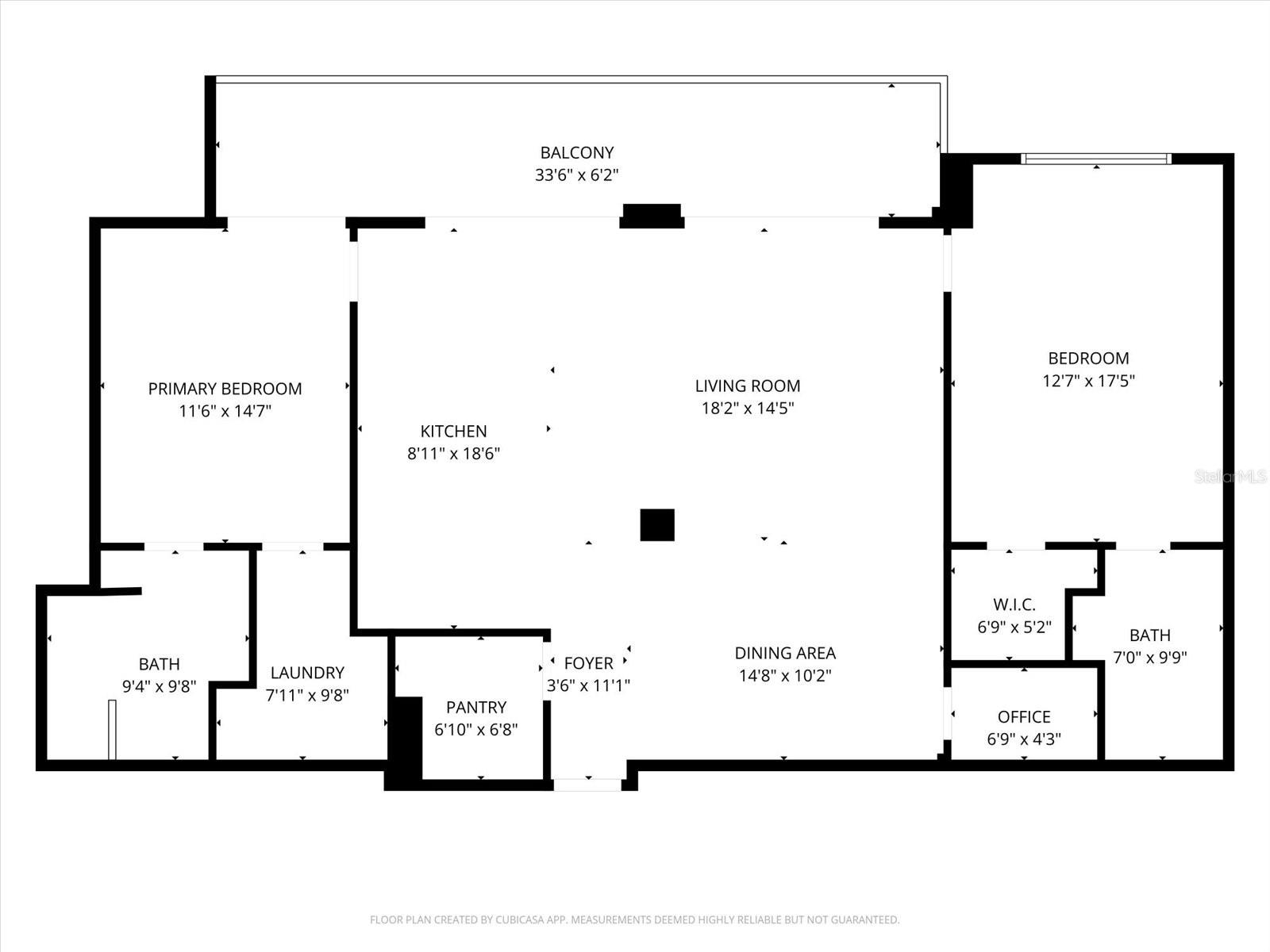
Welcome to Siesta Towers on Siesta Key, where breathtaking Gulf views meet luxurious modern living. Positioned high above on the 9th floor, this stunning 2-bedroom, 2-bath residence showcases sweeping vistas of the Gulf waters, Big Sarasota Pass, and Downtown Sarasota from its expansive private lanai. Completely remodeled with no expense speared, from the studs out in 2024. This 1,440 sq. ft. condo is brand new in every sense of the way. Updates include all new drywall, texture and paint, new plumbing, new electrical, new electrical panel, new hurricane-rated impact windows and sliding glass doors, new air conditioner, and a new hot water heater. Inside new high-end interior finishes, with no expense spared. The chef's inspired kitchen is equipped with custom cabinetry with soft close doors and drawers, beautiful quartz countertops, large island, undermount single bowl kitchen sink, designer tile backsplash, top-of-the-line GE stainless steel appliances, built-in island microwave, and a wine/beverage refrigerator. All new interior doors, closet doors, all new interior millwork to include crown molding, all new lighting and fixtures, new luxury vinyl flooring throughout. Beautifully re-designed bathrooms to include high-end porcelain tile, custom cabinetry with soft close doors and drawers, lighted mirrors, and glass enclosure showers, create a sophisticated yet inviting coastal ambiance. Also, a new in-unit full size washer & dryer with folding table, for ultimate convenience. This beautiful residence comes completely turnkey-furnished with designer-quality furnishings and carefully curated décor, kitchenware, bedding, bathroom linens, and even high-end "Art Frame" TVs making it move-in ready for you to enjoy the Siesta Key lifestyle immediately. Siesta Towers itself has been thoughtfully updated throughout the building and grounds, offering resort-style amenities, including a state-of-the-art club room, fitness center, heated waterfront swimming pool, fishing pier, and a social pier perfect for sunset cocktails. Additional conveniences include storage room for beach equipment, bike storage and a very secure building environment. Whether you're seeking a full-time residence or a perfect beachside retreat, this pristine condo delivers the best of island living. Modern luxury, panoramic views, and resort-style amenities, all just minutes from the world-famous white sands of Siesta Beach. And with Siesta Key Village dining, shopping, and entertainment just a short walk away, this condo truly offers it all.
Features & Amenities
Interior
-
Other Interior Features
Elevator, Crown Molding, Eat-in Kitchen, Open Floorplan, Stone Counters, Walk-In Closet(s)
-
Total Bedrooms
2
-
Bathrooms
2
-
Cooling YN
YES
-
Cooling
Central Air
-
Fireplace YN
NO
-
Heating YN
YES
-
Heating
Central, Electric
-
Pet friendly
No
Exterior
-
Garage
No
-
Construction Materials
Concrete, Stucco
-
Other Exterior Features
Balcony, Dock
-
Parking
Assigned, Deeded, Guest, Open
-
Patio and Porch Features
Covered, Rear Porch
-
Pool
No
-
Waterfront YN
YES
-
View
Water
Area & Lot
-
Lot Features
Landscaped, Waterfront
-
Lot Size(acres)
0.92
-
Property Type
Residential
-
Property Sub Type
Condominium
-
Architectural Style
Other
Price
-
Sales Price
$1,200,000
-
Tax Amount
9836.1
-
Sq. Footage
1, 440
-
Price/SqFt
$833
HOA
-
Association
YES
-
Association Fee Frequency
N/A
-
Association Fee Includes
N/A
School District
-
Elementary School
N/A
-
Middle School
N/A
-
High School
N/A
Property Features
-
Stories
12
-
Association Amenities
Cable TV, Elevator(s), Fitness Center, Gated, Pool
-
Foundation Details
Pillar/Post/Pier
-
Ownership
Condominium
-
Senior Community YN
NO
-
Sewer
Public Sewer
-
Tax Lot
0
-
Water Source
Public
Schedule a Showing
Showing scheduled successfully.
Mortgage calculator
Estimate your monthly mortgage payment, including the principal and interest, property taxes, and HOA. Adjust the values to generate a more accurate rate.
Your payment
Principal and Interest:
$
Property taxes:
$
HOA fees:
$
Total loan payment:
$
Total interest amount:
$
Location
County
Sarasota
Elementary School
Middle School
High School
Listing Courtesy of David Anthony , MICHAEL SAUNDERS & COMPANY
RealHub Information is provided exclusively for consumers' personal, non-commercial use, and it may not be used for any purpose other than to identify prospective properties consumers may be interested in purchasing. All information deemed reliable but not guaranteed and should be independently verified. All properties are subject to prior sale, change or withdrawal. RealHub website owner shall not be responsible for any typographical errors, misinformation, misprints and shall be held totally harmless.

FOUNDER
DanielleUrtnowski
Call Danielle today to schedule a private showing.

* Listings on this website come from the FMLS IDX Compilation and may be held by brokerage firms other than the owner of this website. The listing brokerage is identified in any listing details. Information is deemed reliable but is not guaranteed. If you believe any FMLS listing contains material that infringes your copyrighted work please click here to review our DMCA policy and learn how to submit a takedown request.© 2024 FMLS.
