Property
Beds
3
Full Baths
2
1/2 Baths
1
Year Built
1984
Sq.Footage
3,238
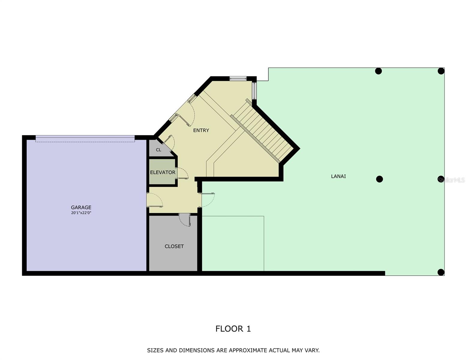
One or more photo(s) has been virtually staged. Come discover a community like no other! Tidy Island is a unique private gated family & pet friendly community situated on 240 acres of protected preservation, wildlife and bird sanctuaries on Sarasota Bay. Only 3 miles to the glorious Gulf beaches of Anna Maria Island. 79 Tidy Island Blvd sits quietly tucked away on the west end. Featuring breathtaking bay views of Longboat Key, Intracoastal waterway and downtown Sarasota. Enter the wide foyer with storage room, off set 2 car garage with glossy epoxy flooring and convenient elevator servicing main living level. Additionally, covered ground level private patio with marble flooring makes the perfect entertainment space and opportunity for outdoor kitchen with gas, water and electric connections. Open floor plan living area accented by soaring ceilings with bonus skylights, bamboo flooring and walls of bayfront windows draw your eye to the sparkling water. Spacious bayfront living room with gas fireplace adjoins the dining area with built ins and wet bar. Family room off the kitchen opens to dramatic sunroom with raised floor, and vaulted ceiling and floor to ceiling windows and sliders with uninterrupted bay views. A Trex deck ideal for outdoor enjoyment has water, gas and electric connections. The chef in the family will enjoy the eat in kitchen with large island, wine refrigerator, stone countertops, solid wood cabinetry, Dacor 6-burner gas range, convection oven, warming drawer, Fisher & Paykel dual dishwasher drawers and LG refrigerator. Primary suite has built in shelving and is nestled in the tree tops with windows framed by plantation shutters. Amazing primary bath features Quartz countertops, bamboo cabinetry, dual sinks, hidden outlets, bidet toilet, and walk-in shower with rain head, body sprays, and bench. Laundry room and powder complete the main level. The third level opens to spacious loft with Brazilian cherrywood flooring adding bonus space for den, office or playroom. The two guest bedrooms feature plantation shutters, high ceilings and share the hall full bath. Upgrades include: bayside impact windows, central vacuum system, roof 2021, tankless electric water heater 2024 and 2 Acs in 2025. Tidy Island amenities include 24/7 guarded gatehouse, two pools & hot tubs, a fitness center, tennis courts & Pickleball courts , clubhouse with social activities, onsite management, kayak storage & launch with scenic boardwalk & walking trails. Convenient Bradenton location is close to IMG Academy, Blake Hospital, G.T. Bray Park, the YMCA, medical offices, restaurants and shopping. A short drive away awaits the Riverwalk, Robinson Preserve, DeSoto National Park and Palma Sola Botanical Gardens. Sarasota is within a 30 minute drive to St Armand's Circle, Van Wezel Preforming Arts, Sarasota Opera House, Asolo Theater and Selby Gardens. Tampa Bay and St Petersburg to the north offer Tropicana Field, Raymond James Stadium, Amelia Arena and Busch Gardens. Or plan a day trip to Orlando for parks of Disney World and Universal Studio only a 2.5 hours drive. Ask your Realtor to schedule your private showing today.
Features & Amenities
Interior
-
Other Interior Features
Elevator, Built-in Features, Eat-in Kitchen, High Ceilings, Open Floorplan, Stone Counters, Vaulted Ceiling(s), Walk-In Closet(s), Wet Bar
-
Total Bedrooms
3
-
Bathrooms
2
-
1/2 Bathrooms
1
-
Cooling YN
YES
-
Cooling
Central Air, Ductless
-
Fireplace YN
YES
-
Heating YN
YES
-
Heating
Central, Electric
-
Pet friendly
Cats OK, Dogs OK, Yes
Exterior
-
Garage
Yes
-
Garage spaces
2
-
Construction Materials
Block, HardiPlank Type
-
Other Exterior Features
Balcony, Lighting, Rain Gutters
-
Parking
Driveway, Garage Door Opener, Garage Faces Side, Attached
-
Patio and Porch Features
Covered, Deck, Patio, Rear Porch
-
Pool
No
-
Waterfront YN
YES
-
View
Water
Area & Lot
-
Lot Features
Landscaped, Paved, Private, Waterfront
-
Property Type
Residential
-
Property Sub Type
Condominium
-
Architectural Style
Elevated
Price
-
Sales Price
$1,379,000
-
Tax Amount
5489.0
-
Sq. Footage
3, 238
-
Price/SqFt
$425
HOA
-
Association
YES
-
Association Fee Frequency
Quarterly
-
Association Fee Includes
N/A
School District
-
Elementary School
Sea Breeze Elementary
-
Middle School
W.D. Sugg Middle
-
High School
Bayshore High
Property Features
-
Stories
3
-
Accessibility Features
Accessible Entrance, Accessible Elevator Installed, Accessible Full Bath
-
Association Amenities
Cable TV, Clubhouse, Fitness Center, Gated, Pool, Recreation Facilities, Security, Spa/Hot Tub, Tennis Court(s), Trail(s)
-
Foundation Details
Slab
-
Ownership
Condominium
-
Senior Community YN
NO
-
Sewer
Public Sewer
-
Tax Lot
79
-
Water Source
Public
Schedule a Showing
Showing scheduled successfully.
Mortgage calculator
Estimate your monthly mortgage payment, including the principal and interest, property taxes, and HOA. Adjust the values to generate a more accurate rate.
Your payment
Principal and Interest:
$
Property taxes:
$
HOA fees:
$
Total loan payment:
$
Total interest amount:
$
Location
County
Manatee
Elementary School
Sea Breeze Elementary
Middle School
W.D. Sugg Middle
High School
Bayshore High
Listing Courtesy of Liz Codola , ISLAND REAL ESTATE-ANNA MARIA
RealHub Information is provided exclusively for consumers' personal, non-commercial use, and it may not be used for any purpose other than to identify prospective properties consumers may be interested in purchasing. All information deemed reliable but not guaranteed and should be independently verified. All properties are subject to prior sale, change or withdrawal. RealHub website owner shall not be responsible for any typographical errors, misinformation, misprints and shall be held totally harmless.

FOUNDER
DanielleUrtnowski
Call Danielle today to schedule a private showing.

* Listings on this website come from the FMLS IDX Compilation and may be held by brokerage firms other than the owner of this website. The listing brokerage is identified in any listing details. Information is deemed reliable but is not guaranteed. If you believe any FMLS listing contains material that infringes your copyrighted work please click here to review our DMCA policy and learn how to submit a takedown request.© 2024 FMLS.
