Property
Beds
4
Full Baths
3
1/2 Baths
1
Year Built
1994
Sq.Footage
3,442
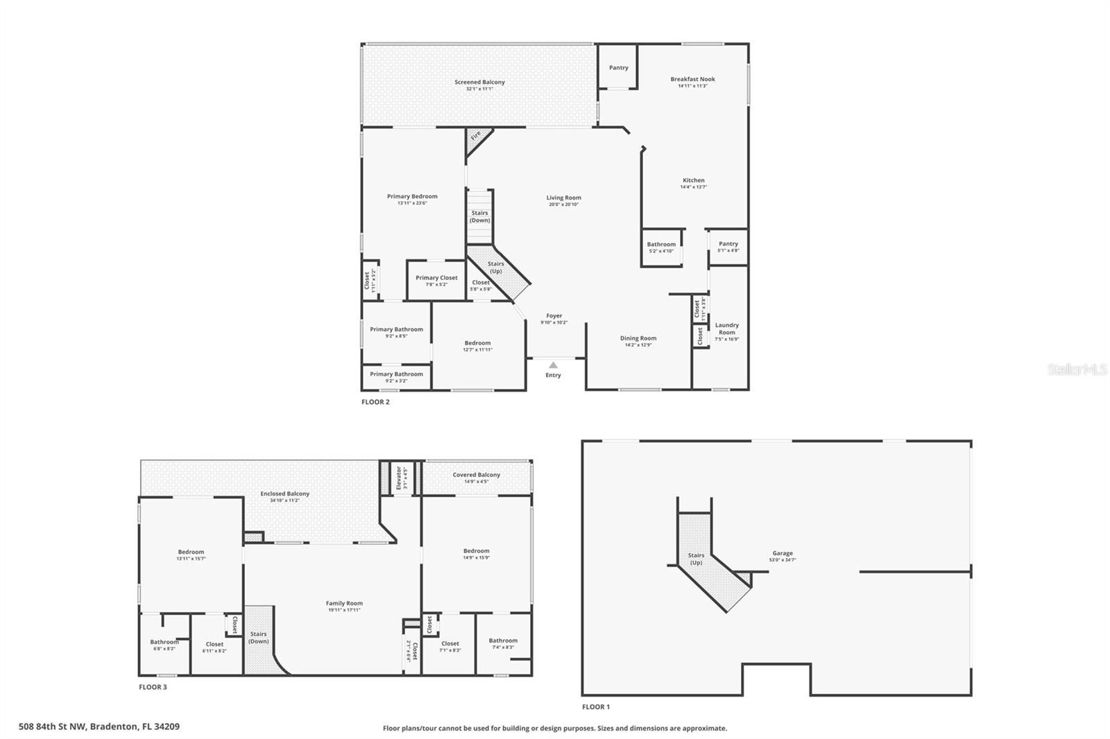
CUSTOM COASTAL LIVING AT ITS FINEST. Are you most inspired by the tranquil sound of waves lapping gently against the riprap on the waters' edge, the serene beauty of lushly landscaped grounds, or the exceptional craftsmanship of a custom-designed home? Here, you can have it all! Positioned on approximately .63 acres in highly sought-after NW Bradenton, this very unique property offers a beautiful three-story, 4-bedroom, 3.5-bath residence and 2 adjacent waterfront lots providing a myriad of options in its use. Wake up to breathtaking water views and end your day with stunning sunsets from your private rooftop perch, accessed by a charming spiral staircase. EVERY INCH OF THIS HOME REFLECTS QUALITY - stepping inside you are greeted by the warmth of rich wood floors and the elegance of crown molding that frames each room with quiet sophistication: a high-end classic kitchen features a large breakfast room, custom wood cabinetry, two dishwashers, a Miele built-in coffee system, filtered water system, a spacious walk-in pantry and elevator access from the garage. Warm wood floors, plantation shutters throughout, and a cozy fireplace in the great room that flows onto a large, screened porch add richness and charm. Work from home? The 4th bedroom has served as a private office for this homeowner for years. An elegant, curved staircase enhances the home’s thoughtful layout, providing access to a large upstairs bonus room centered between two ensuite bedrooms, all with private balconies overlooking the bay—ideal for guests or family members to enjoy their own tranquil escape. ADDITIONAL HIGHLIGHTS include an elevator accessing all 3 stories; large laundry room with floor-to-ceiling cabinetry, a 3-car oversized garage with workbench, extensive storage with air-conditioned space, an epoxy-type floor coating, and a circular drive and multi-car paver parking pad. THIS EXCEPTIONAL PROPERTY DELIVERS THE BEST OF COASTAL FLORIDA LIVING - Quiet elegance, unmatched views, and the comfort of a truly custom home—just minutes from IMG Academy, Robinson Preserve (682-acre nature preserve featuring trails, picnic areas, scenic lookouts), area beaches, and everything Bradenton has to offer. Speak to your real estate professional for more details and an opportunity to view this exceptional property.
Features & Amenities
Interior
-
Other Interior Features
Elevator, Crown Molding, Eat-in Kitchen, High Ceilings, Open Floorplan, Stone Counters, Walk-In Closet(s)
-
Total Bedrooms
4
-
Bathrooms
3
-
1/2 Bathrooms
1
-
Cooling YN
YES
-
Cooling
Central Air, Zoned
-
Fireplace YN
YES
-
Heating YN
YES
-
Heating
Central, Electric
-
Pet friendly
Yes
Exterior
-
Garage
Yes
-
Garage spaces
3
-
Construction Materials
Block, Stucco
-
Other Exterior Features
Balcony, Lighting, Rain Gutters, Storage
-
Parking
Circular Driveway, Garage Door Opener, Guest, Oversized, Basement, Attached
-
Patio and Porch Features
Covered, Front Porch, Rear Porch, Screened
-
Pool
No
-
Waterfront YN
YES
-
View
Water
Area & Lot
-
Lot Features
Landscaped, Waterfront
-
Lot Size(acres)
0.37
-
Property Type
Residential
-
Property Sub Type
Single Family Residence
-
Architectural Style
Custom
Price
-
Sales Price
$1,875,000
-
Tax Amount
6436.93
-
Sq. Footage
3, 442
-
Price/SqFt
$544
HOA
-
Association
NO
School District
-
Elementary School
Ida M. Stewart Elementary
-
Middle School
Martha B. King Middle
-
High School
Manatee High
Property Features
-
Foundation Details
Other
-
Ownership
Fee Simple
-
Senior Community YN
NO
-
Sewer
Public Sewer
-
Tax Lot
23
-
Water Source
Public
Schedule a Showing
Showing scheduled successfully.
Mortgage calculator
Estimate your monthly mortgage payment, including the principal and interest, property taxes, and HOA. Adjust the values to generate a more accurate rate.
Your payment
Principal and Interest:
$
Property taxes:
$
HOA fees:
$
Total loan payment:
$
Total interest amount:
$
Location
County
Manatee
Elementary School
Ida M. Stewart Elementary
Middle School
Martha B. King Middle
High School
Manatee High
Listing Courtesy of Sharon Ingram , MICHAEL SAUNDERS & COMPANY
RealHub Information is provided exclusively for consumers' personal, non-commercial use, and it may not be used for any purpose other than to identify prospective properties consumers may be interested in purchasing. All information deemed reliable but not guaranteed and should be independently verified. All properties are subject to prior sale, change or withdrawal. RealHub website owner shall not be responsible for any typographical errors, misinformation, misprints and shall be held totally harmless.

FOUNDER
DanielleUrtnowski
Call Danielle today to schedule a private showing.

* Listings on this website come from the FMLS IDX Compilation and may be held by brokerage firms other than the owner of this website. The listing brokerage is identified in any listing details. Information is deemed reliable but is not guaranteed. If you believe any FMLS listing contains material that infringes your copyrighted work please click here to review our DMCA policy and learn how to submit a takedown request.© 2024 FMLS.
