Properties

Browse or get in touch to schedule a walkthrough.

  • Nearby me
Price range

Popular features

Community features

Property features

Waterfront

View

Exterior Features

Interior Features

Style

10000 properties match your criteria

Updated 1 minute ago

E-Alert name

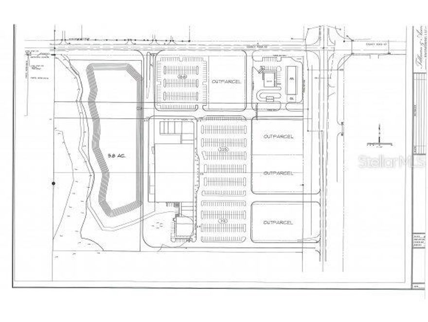
13.28 commercial acres. Infrastructure in place including drainage. Property has frontage and access on US 301 and CR 42.
Near the Villages, great visibility. Outparcels available.
#OM390107

SUMMERFIELD

6416 SE HIGHWAY 42

None Beds

None Baths

13.28 acres

$4,732,000

MLS#: OM390107

Under Contract. Already Rezoned High Density PUD with entitlements. LOCATION LOCATION LOCATION....Offering approximately 40- 50 acres of Prime land . Perfect location in highly sought after North West Ocala, adjacent to Quail Meadow and Ocala Preserve. Just a couple minutes from I-75 , Hwy 27 , Publix & The World Equestrian Center. The acreage is already cleared. The highest and best use would be a residential community. Utilities are right there. The opportunities are endless for this gorgeous property.  Currently a 74.4 acre Horse Farm that is fully fenced with a Gated entry. Survey. Seller will be retaining the remaining acreage with improvements. Buyer to do Due Diligence on Zoning, permitting and future development possibilities. They aren't making land like this anymore especially in this location. Additional acreage may be available. Entitlements will be sent with verification of buyers ability to purchase.
#OM629701

OCALA

3718 NW 44TH AVENUE

None Beds

None Baths

40.0 acres

$4,728,000

MLS#: OM629701

Don’t miss out on this prime development opportunity! Now available are 6.9 acres in the heart of the Lakewood Ranch Expansion.
This agriculturally zoned property presents an exceptional opportunity for residential or commercial development, ideally situated in one of the most rapidly expanding areas on Florida’s Gulf Coast. Located just over 6 miles from the SR 64 exit off I-75 and less than a quarter mile west of the Uihlein Road and SR 64 intersection, this property is directly in the path of Lakewood Ranch’s newest growth corridor.
The parcel is entirely within Flood Zone X, making it high and dry—an increasingly rare find in this area. Included on the property is a 3-bedroom, 2-bath single-family home that could serve as a primary residence, rental, or interim use while planning future development. The roof on the home was replaced in 2022. 
Uihlein Road serves as a main access route into the latest residential expansions of Lakewood Ranch, offering direct connectivity to thriving new communities such as Esplanade at Azario, Star Farms, Cresswind, Sweetwater, Lorraine Lakes, and Lakewood National Golf Club. Just west of several new construction neighborhoods including Marisol, Palm Grove, and the luxury Alton Lakewood apartments, this location is surrounded by both current and planned development activity. In addition to residential growth, the area is slated for new commercial hubs, including a Publix shopping center and other retail destinations that will further enhance the area's desirability and accessibility.
With its unbeatable location, development-friendly conditions, and placement at the center of a high-demand growth area, this property offers significant long-term potential for rezoning opportunities and will interest investors, developers, or those seeking a strategic opportunity in East Manatee County.
#A4648706

BRADENTON

16305 E STATE ROAD 64

3 Beds

2 Baths

2,492 Sq.Ft.

$4,725,000

MLS#: A4648706

Don’t miss out on this prime development opportunity! Now available are 6.9 acres in the heart of the Lakewood Ranch Expansion. This agriculturally zoned property presents an exceptional opportunity for residential or commercial development, ideally situated in one of the most rapidly expanding areas on Florida’s Gulf Coast. Located just over 6 miles from the SR 64 exit off I-75 and less than a quarter mile west of the Uihlein Road and SR 64 intersection, this property is directly in the path of Lakewood Ranch’s newest growth corridor. The parcel is entirely within Flood Zone X, making it high and dry—an increasingly rare find in this area. Included on the property is a 3-bedroom, 2-bath single-family home that could serve as a primary residence, rental, or interim use while planning future development. The roof on the home was replaced in 2022. Uihlein Road serves as a main access route into the latest residential expansions of Lakewood Ranch, offering direct connectivity to thriving new communities such as Esplanade at Azario, Star Farms, Cresswind, Sweetwater, Lorraine Lakes, and Lakewood National Golf Club. Just west of several new construction neighborhoods including Marisol, Palm Grove, and the luxury Alton Lakewood apartments, this location is surrounded by both current and planned development activity. In addition to residential growth, the area is slated for new commercial hubs, including a Publix shopping center and other retail destinations that will further enhance the area's desirability and accessibility. With its unbeatable location, development-friendly conditions, and placement at the center of a high-demand growth area, this property offers significant long-term potential for rezoning opportunities and will interest investors, developers, or those seeking a strategic opportunity in East Manatee County.
#A4653614

BRADENTON

16305 E STATE ROAD 64

None Beds

None Baths

6.9 acres

$4,725,000

MLS#: A4653614

One or more photo(s) has been virtually staged. This beautiful custom-designed home has convenient private beach access. Located on Gasparilla Island, this modern home has all the amenities you could want. High-end finishes abound, including a gourmet kitchen with marble countertops, a new Sub-Zero refrigerator and Wolf gas cooktop range hood, and a double oven. Enjoy views of the surrounding Florida landscape from the breakfast nook and living area with the large windows. While you may never want to leave the gorgeous main kitchen, there’s an outdoor kitchen with a pizza oven right by the pool. The primary ensuite bathroom overlooks the pool and has a luxurious new bathroom, soaking tub, walk-in shower, and spacious walk-in closet. The other bedrooms are on the opposite side of the home for privacy. Whether you want to take a dip in the pool, relax by the fire pit, shoot basketball on your private half-court, or stroll down to the beach, this lovely property is the perfect Florida home base.
#D6132640

BOCA GRANDE

16121 SUNSET PINES CIRCLE

4 Beds

5 Baths

9,633 Sq.Ft.

$4,725,000

MLS#: D6132640

Ideal location in Apopka, next to the Northwest Recreation Complex, Wolf Lake Elementary and Middle Schools, and a short drive to the new 429 Extension that connects to all areas of Central Florida.  Currently zoned 2 units to the acre.  City water comes to the property and the sewer connects to the schools next door.  Call today to schedule your private tour.
#G5048241

APOPKA

2351 W PONKAN ROAD

None Beds

None Baths

31.54 acres

$4,725,000

MLS#: G5048241

Located in the gated Community of Legends Bay the St. Regis model home with 4 spacious bedrooms and 5.5 elegant baths offers privacy with plenty of space to entertain family and friends.
Move in ready.

With a large lanai and courtyard, five view-enhancing balconies and a three-car garage it has everything you could imagine in a luxury Florida estate. The residence features a grand, two-story foyer, greeting you with soaring, 12-foot ceilings. For all your entertaining needs, there's a formal dining room and den, and the great room offers views of the backyard with pool, spa and sun shelf through a wall of sliding glass doors. Tranquility, seclusion and privacy surround this luxurious furnished property.  There's ample room for you to prepare the most delicious meals in a fully-equipped kitchen with a walk-in pantry and butler's pantry. The exclusive first-floor owner's suite is accessed by a private hallway that leads to a luxe bedroom with direct access to the lanai and a sunlit sitting area. The en-suite bathroom details are amazing with dual vanities, linen closet, soaking tub, and tiled walk-in shower, that will make your end-of-day routine feel like a trip to the spa, each and every single day. On the second level, two rear-facing balconies let you enjoy the warm Florida breeze in privacy along with a front balcony. You'll find three bedrooms, each with their own attached walk-in closet and bathroom, a large bonus room and a powder room. The third level features an entertainment space complete with access to a large balcony with beautiful views of the Sarasota Bay, downtown Sarasota, Longboat Key and nature preserve, a wet bar and a powder room. An elevator provides easy access to every floor. If you are ready to experience luxury in a way that only a St Regis Model can provide, welcome home.
#A4568140

BRADENTON

5834 INSPIRATION TERRACE

4 Beds

5 Baths

9,390 Sq.Ft.

$4,700,000

MLS#: A4568140

47 acres of prime residential development land adjacent to Deltona City Limits. This property will be delivered as 29, one ± acre shovel ready lots. This will be a gated community and a great fit for larger, high valued custom built homes. Existing residential development with 75 foot wide lots is contiguous to the east side of this property and new development is on the next property to the east.

47 acres of prime residential development land
Ideal for upscale residential development
29 shovel-ready lots, each approximately one acre

The property is situated in a prime location for residential development, offering a balance of suburban tranquility and accessibility. The property is conveniently near Interstate 4 and State Road 415, ensuring easy commutes to Orlando, Daytona Beach, and surrounding areas. 

Surrounded by existing and new residential developments
#O6300072

OSTEEN

DOYLE ROAD

None Beds

None Baths

47.0 acres

$4,700,000

MLS#: O6300072

Fully leased Iconic office building with strong operating history located in the highly coveted Hammock area of Palm Coast. Originally constructed as the sales center for Hammock Beach and Ocean Hammock, the facility is first class. Impressive 5K+ sf lobby has not been allocated among seven tenant's leases as a core factor, so there is an immediate opportunity for additional income over current NOI. Operating numbers for 2024 are actual, and pricing reflects a 7 cap rate. At under $200/sf, this building could not be replicated.  The roof was replaced in 2023/24 and all HVAC units are updated as well. 
There is not a better city in Florida for commercial real estate investment! Palm Coast has experienced substantial growth in recent years. As of 2024, the city's population is estimated at 106,000. The local economy is diverse, with key employment sectors including healthcare, retail trade, hospitality and food services. The city's proximity to Jacksonville, Orlando, and the Space Coast provides businesses with access to a highly educated and skilled workforce. Palm Coast is just 60 miles south of Jacksonville and 80 miles northeast of Orlando enabling it to draw significant business from these larger markets.

Don't miss the premier investment opportunity in fast growing, desirable Palm Coast. Call to make an appointment and see this upscale, profitable facility for yourself!
#FC308281

PALM COAST

1 HAMMOCK BEACH PARKWAY

None Beds

None Baths

25,834 Sq.Ft.

$4,700,000

MLS#: FC308281

BUILT TO WITHSTAND A CAT 5 HURRICANE, LIVING SPACE OF THE HOME COMPLETELY UNTOUCHED BY HURRICANE HELENE! Some repairs being made to outbuildings and garage doors below the home.  MOVE IN READY!  TROPICAL GULF OF MEXICO LUXURY ESTATE – This stunning Gulf front property, comprised of over 23 acres, with over 1,100 feet of waterfront on the Gulf of Mexico, with incredible water views from every room is a one-of-a-kind opportunity. The residence is comprised of 5 bedrooms and 5/2 bathrooms in over 8,950 sq ft of living area.  Bathed in sunlight, the split plan residence comprises a large entrance hall, living room, generous dining room, butler’s pantry, gourmet kitchen, 350-bottle wine cellar, large walk-in pantry,  informal dining area,  family room, billiard room, library, professional built 28 seat home theatre, exquisite master suite, opulent en-suite, all showcasing breathtaking views of the Gulf of Mexico. Gated, safe & secure, with a generator that will run the entire home for a month. Outside, a magnificent west facing terrazzo terrace extends the entire length of the home, with an outdoor kitchen with breathtaking Gulf views.  Outdoor highlights also include a boat ramp, rustic boat house,  a historical rustic guest house, a bridge which leads to an island with a floating boat dock, and double (lighted) tennis courts all amid the beautiful coastal wilderness. A car collectors dream featuring a 40+ car garage, with height for car racks and 12 garage doors, including a utility door, for Helicopter or RV and spans the entire space under the home. The 30,000 sq. ft. motor court makes landing a helicopter easy!   The region is a prime spot for water sports and fishing. One of Florida’s most captivating Gulf Coast homes, this private, opulent home is cleverly designed to maximize its position overlooking the Gulf of Mexico.
#U8251103

SPRING HILL

1227 OSOWAW BOULEVARD

5 Beds

5 Baths

20,509 Sq.Ft.

$4,700,000

MLS#: U8251103

A stunning, privacy walled estate home in the Golfview neighborhood, featuring 12 foot ceilings, spacious rooms and exceptional finishes throughout.
#T3530318

TAMPA

1017 S FRANKLAND ROAD

5 Beds

5 Baths

7,521 Sq.Ft.

$4,700,000

MLS#: T3530318

At this exquisite and exclusive West Beach apartment, a Ritz Carlton Reserve Residence, you will enjoy stunning sunset views and a spectacular golden sands beach every day!! Unwind in a beautiful landscape filled with sunshine, golfing and outdoor leisure where the possibilities to create ever-lasting memories are endless… 
This luxury unit is located within the gates of the legendary Dorado Beach Resort in Puerto Rico, a sought-after exclusive place with almost two miles of beach front, and the exclusive service of Ritz-Carlton Reserve. It is a fabulous opportunity to become the owner of a spacious and elegant beach front property with high end quality finishing that is located on the beach Laurence Rockefeller chose 50 years ago. 
This beach front residence features 2 bedrooms, Media room, 3 bathrooms, open kitchen design, living-dining room, laundry room, owner’s closet, media room, two covered shower patio areas, covered terrace, golf cart parking space and garage for one car. 
• Fully equipped gourmet kitchen 
• Fully furnished and equipped 
• Spacious balconies overlooking the ocean 
• Open floor plan 
• Exclusive concierge service with a dedicated residential management team to attend to your every need. 
• Owners also receive membership in the Dorado Beach Club. Membership includes access to four Robert Trent Jones Sr. designed golf courses, the 8,000 sq foot Fitness and Wellness Center, several dining venues, and The Watermill, a $12 million aquatic park.
#PR9091682

DORADO

100 DORADO BEACH DRIVE

2 Beds

2 Baths

2,258 Sq.Ft.

$4,700,000

MLS#: PR9091682

WOW! SPECTACULAR LAKEFRONT WITH AMAZING SUNSET VIEW. 6-7 BEDROOM 6 FULL BATH HOME PLUS 2 HALF BATHS, (EACH BEDROOM HAS IT'S OWN BATH) BOAT DOCK. EVERYTHING UPSCALE. CUSTOM BUILDER REMODELED THE INTERIOR WITH ADDITIONAL NEW FEATURES SPENDING OVER $1.4 MILLION CLOSE TO 6800 SQ. FT. / 8275. 24 HOUR GATED AND GUARDED COMMUNITY. Interior walls stripped and re-done including electrical, plumbing, floors, air conditioning, automated lighting systems and security surveillance cameras in and out. EXTENDED BONUS ROOM UPSTAIRS. All modern upscale craftmanship and rich details, state of the art, completed 2018. Must see Master bathroom with 2 STORY HIS & HER CLOSET. MARBLE SLAB WALLS (NO GROUT), OVERSIZED MASTER SITTING AREA. Molding and Niches throughout. All living areas have 34x34 inch MARBLE TILE FLOORS. This home includes a GOURMET KITCHEN with updated Island, exotic GRANITE COUNTERTOPS and MARBLE Floors. All steel appliances, double oven, GAS STOVE, pantry, and elegant cabinets. HUGE FAMILY ROOM with AMAZING LAKE VIEWS! Master, Office, and additional 3 Bedrooms downstairs also an Entertainment Room with WOOD FLOORS, updated wall cabinets, molding, and plantation shutters. ALL TV AND DVD MUSIC SYSTEM INCLUDED. SURVELLIANCE CAMERAS IN AND OUT. SOARING CEILINGS AND BREATHTAKING VIEWS! Every room completed with CUSTOM CABINETRY, ELEGANT FAMILY ROOM WITH MARBLE FIREPLACE, EXTRA LARGE OPEN LAKE VIEWS, and lighter paint color. 2 BEDROOMS UPSTAIRS COMBINED AS 2ND MASTER / INLAW SUITE WITH SMALL REFRIGERATOR, MICROWAVE AND SINK. 42x12 Bonus Room/Theater Room/ 7th Bedroom. STUNNING EXTRA LARGE GAME ROOM ON FIRST FLOOR WITH BAR SET UP, LAKE VIEWS & WOOD FLOORS. Indoor Laundry Room with Storage. 3 Car oversized side garage entry with CIRCULAR DRIVE. ADDITIONAL 2-3 CARS PARKING SPACES WITH FENCE GATE. Square footage provided by original builder plans. Extra Large RAISED BACK YARD with SEA WALL AND LANDSCAPE LIGHTING. DOCK RECENTLY UPDATED $50K, NEW A/C $20K. NEW LANDSCAPING. POOL & NEWER ELECTRIC HEATER FOR POOL + GAS HEATED SPA + KIDDY POOL. TRAVERTINE DECK AND GRANITE SUMMER KITCHEN. ENTIRE POOL AREA WAS DEMOLISHED AND TOTALLY REBUILT. SEA WALL and ONE OF A KIND SEE THROUGH GLASS FENCED YARD, NO OTHER HOME IN THIS AREA HAS A GLASS FENCE (SEE THROUGH YARD AND LAKE.) IRON FENCE ON BOTH SIDES. LOW WATER BILLS water pump from lake for irrigation. Mosquito repellent in back for pool and porch. Orlando’s most exclusive 24 Hour Gated and Guarded Community with boat dock, small park, playground, tennis, and basketball courts. Estates at Phillips Landing – Dr. Phillips area, with the best of everything! THIS UNIQUE INTERIOR DESIGNED HOME is comparable to no other home in the area, took many years to complete update with County and HOA Permit. USED AS A SECOND HOME, AND MAINTAINED BY CARETAKERS. Close to “Restaurant Row”, 25 min. to International Airport, Disney World and EPCOT. Close to Sea World, Universal Studios, Malls, Schools, Library, Trader Joes, Whole Foods & Fresh Market. ENJOY THE SUNSET. ENTERTAIN FAMILY & FRIENDS ON THE LARGEST OPEN PORCH ON LAKEFRONT!  YOU MUST SEE THIS HOME TO BELIEVE IT! MUST SHOW PROOF OF FUNDS.
#O6344799

ORLANDO

9245 SOUTHERN BREEZE DRIVE

6 Beds

6 Baths

8,275 Sq.Ft.

$4,700,000

MLS#: O6344799

Spectacular Bayfront Location. Nestled on a cul-de-sac with 104 feet of water frontage, this Mediterranean style luxury estate offers unobstructed panoramic views of Sarasota Bay. This delightful setting includes a tropical backyard with a private L-shape 320 sq ft dock equipped with a new 13,000 lb. boat lift – perfect for fishing, kayaking, and boating. A newly-crafted paver designed circular driveway enhances the home’s exceptional curb appeal. The front stairway leads to double solid crafted wood doors that open to 5,175 square feet of living space with multiple upgrades highlighted by 5 bedrooms, 5 ½ bathrooms, and a large bonus room. Engineered hard wood floors seamlessly blend the living areas of this functional floorplan. Stunning water views and an inviting formal living room set the tone upon entering the home with soaring high ceilings extending past the second floor and anchored by a striking gas fireplace creating an elegant focal point. The high-end custom kitchen – a chef’s dream – features stunning solid hand-crafted wood cabinetry, two copper sinks, 6-burner gas range with custom hood, two ovens, granite countertops, a large island with a breakfast bar, sub-zero refrigerator, and top-tier appliances. Adjacent to the kitchen, the epic sitting room with a wall of windows provides captivating views for a serene living environment. The covered outside terrace gives an expansive, airy feel to the kitchen and living areas with breathtaking views of the pool area, the bay, and beyond. The generous primary suite provides a tranquil escape with additional bay views, as well as offering an updated en-suite bathroom and a large walk-in closet. Generous closet storage with thoughtfully designed built-ins adds to the function of this suite. The second floor offers a large bonus room with a wet bar, 3 bedrooms with their own private guest baths for added convenience. The 5th bedroom with an en-suite bath is currently being used as an office. Step outside to your private oasis: a large, covered patio overlooking the pool and spa with stylish tiled decking. The outdoor space continues with a manicured landscaped yard, leading to a staircase down to the dock, which is equipped with electric and water hookups for ultimate convenience. This residence boasts architectural features including crown molding, custom fireplace with built-ins, and tall custom baseboards. Other features include an elevator, large laundry room, split 3-car garage, new updated garage vented shutters, new roof, new gutters, new paint, new pool equipment, a new boat lift with an extra dock for your jet-ski, kayak or paddleboard, new water heater and more. Located in a coveted West of Trail Buccaneer Bay neighborhood that offers proximity to Siesta Key beach, restaurants, shopping, and downtown Sarasota. A premier waterfront property combines elegant craftsmanship and incredible views to create an unparalleled Florida lifestyle.
#A4648878

SARASOTA

7342 CAPTAIN KIDD AVENUE

5 Beds

5 Baths

9,470 Sq.Ft.

$4,700,000

MLS#: A4648878

New on site 1 day ago
Experience elevated coastal living in this updated, elegantly styled waterfront residence in the coveted community of Country Club Shores on South Longboat Key. This beautifully maintained home has no history of flood or storm-water damage and offers peace of mind with a brand-new roof, all-new seawall, new dock, two boat lifts, updated mechanicals, and a private elevator—creating a true turn-key waterfront opportunity.  Inside, soaring vaulted ceilings and walls of glass frame sweeping bay views throughout the bright, open living spaces. The thoughtfully designed floorplan includes both formal and casual areas, featuring a living room, dining room, spacious family room, and an eat-in gourmet kitchen with high-end appliances—ideal for effortless entertaining. In addition to the main primary suite, there is the flexibility of having a first-floor primary as well, allowing you to tailor the layout to your lifestyle or guest needs.  The primary suite offers panoramic water views, a spa-style bath, and a generous terrace perfect for capturing vibrant sunrises over the bay. Three additional guest suites ensure comfort and privacy for family and visitors.  Outdoor living features a gas-heated pool and spa (LED lighting, smartphone-controlled), multiple lounging and sunning decks, and spaces designed for al fresco dining or simply relaxing with the bay as your backdrop. Fresh landscaping enhances the home’s elevated setting and timeless curb appeal.  Perfectly positioned, this residence offers quick boating access, Gulf deeded beach access, and is just moments from—and walkable to—the Longboat Key Club for golf, dining, and tennis. Enjoy an easy drive to St. Armands Circle, downtown Sarasota’s vibrant arts and dining scene, and the convenience of Sarasota International Airport just minutes away.  A rare opportunity to own a refined, updated, and fully equipped waterfront retreat in one of Longboat Key’s most chosen neighborhoods—luxury living, elevated.
#A4673592

LONGBOAT KEY

610 YARDARM LANE

4 Beds

4 Baths

4,138 Sq.Ft.

$4,700,000

MLS#: A4673592

1 ... 142 143 144 145 146 ... 666
* Listings identified with the FMLS IDX logo come from FMLS and are held by brokerage firms other than the owner of this website. The listing brokerage is identified in any listing details. Information is deemed reliable but is not guaranteed. If you believe any FMLS listing contains material that infringes your copyrighted work please click here to review our DMCA policy and learn how to submit a takedown request. © 2024. First Multiple Listing Service, Inc.
 - property

Send a message

Message successfully sent.

Your message

What is 3 + 4 ?

Reason for contacting?

Sign Out

Virtual Assistant

Would you like to take the next step with this property? We can help you schedule a showing or virtual tour, or send you more details.

Yes, I would like more information.

Thank You for Your Reply, One of Our Agents will contact you as soon as possible

No, maybe later.

Thank you, you can always contact me via email, phone number or through the contact form.

Realhub AI

Lucy - Your AI-Powered Realtor

Update Your Temporary Password

Personalize your search

Enter your email and we'll notify you immediately when new listings match what you're looking for.

or enter email address

Already have an account ? Login here

Continue your home search

Already have an account ? Login here